Tervezési folyamat
Kezdőlap  |  Tervezési folyamat

A családi ház tervezés folyamata

Az épület tervezés, avagy egy családi otthon születése a kreatív kezdetektől a tervbeadásig

Felső kép: Tervfoly
Minden építésziroda sajátja az a folyamat, amellyel segíti az ügyfeleit a háztervezés során. Az elmúlt 20 év alatt sikerült olyan metódust kialakítanunk, a SzeRaKo Kreatív Design © tervezési folyamat mentén, amely alatt az Építtetővel közösen tudunk haladni a legelső lépésektől egészen az általa megálmodott épület felépítéséig. Ez a folyamat teszi lehetővé, hogy a tervezett épületeinket maximálisan személyre szabjuk! Sok más építész iroda kész típustervek szerint dolgozik, sokan csak az általuk szépnek vélt stílusban terveznek. Mi az elhangzott igények szerint alkotjuk meg új épületeinket, figyelve az építészeti gondolkodásmód egységes alkalmazására az egész családi házon.
Ebben a részletes leírásban egy lakóház létrejöttének történetét követhetjük nyomon, a tervezés első lépéseitől a kiviteli tervekig. A családi háztervezés folyamatának, tömörített, vázlatpontokba szedett leírása is elérhető.

Legyen a következő elégedett Ügyfelünk!

Szorosan ugyan nem a tervezési folyamathoz tartozik, azonban az együttműködésünk során a legelső lépés az egymásra találás és kapcsolatfelvétel, amely ezen sorok elolvasásával részben meg is történt, már csak azt várjuk, hogy csengjen a telefonunk, vagy jelezzen a levelező program :-)
Családi háztervezési folyamat, az első megbeszélés Az első megbeszélést a legtöbb esetben személyes találkozó követi, mely hosszabb-rövidebb kötetlen beszélgetést jelent. Ekkor lehetőségünk van - az igények tükrében - bemutatni a referenciáinkat, és ismertetjük a teljes tervezés folyamatát is.

A beszélgetés a tervezendő ingatlan legfontosabb részleteire kiterjedő elképzelések, ötletek, újságkivágások ismertetésével folytatódik. Ez képezi alapját a tételes építészeti árajánlatunknak, melyet legtöbbször e-mailen jutattunk el. Elfogadás esetén aláírásra kerül az erről szóló szerződés, valamint ezzel egy időben rendezzük az előleget is. A háztervezési munka ezen felül nem jár további anyagi ráfordítással, a készülő koncepció tervek kifizetése a Megrendelő írásbeli elfogadása után történik.
Komplex együttműködés esetén (tervezés, anyagszállítás, kivitelezés) a teljes tervezés szinte díjmentessé tehető! A részletekért tekintse meg partnereink és a forgalmazott termékek listáját, vagy forduljon hozzánk telefonon.) De ne szaladjunk ennyire előre, mert addig még megannyi lépés van hátra.

Napsütés és friss levegő - helyszín, előírások és az előkészítő munkák

Háztervezéshez kapcsolódó helyszíni szemle Tisztáztuk tehát az Építtető igényeit. Ezt követi az első helyszíni szemle, ahol fényképfelvételeket készítünk az építési telekről és környezetéről. Nagyon fontosnak tartjuk, hogy az építész személyesen ismerje meg a tervezendő építmény közvetlen és közvetett környezetét, „magába szívja a környék levegőjét”. Szükséges élőben is látni a telek összes adottságát: tereplejtés, tájolás, növényzet, közmű bekötések, szomszédos épületek, gépkocsi behajtási lehetőségek, a meglévő vagy bontandó építmények, stb.

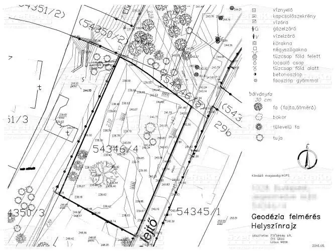
Ezt követően az építési előadótól beszerezzük a beépítési előírásokat, megbeszéljük a településképi követelményeket. (Nagy ritkán előfordulhat, hogy a Megrendelő által felvázolt igények a beépítési előírások ismeretében semmilyen körülmények között nem valósíthatók meg. Ekkor sajnos újra kell kezdeni az alapkoncepció megbeszélését.) A helyszínen látottak alapján döntünk az előkészítő munkák szükségességéről, amelyek közül a legfontosabb kettő a Geodéziai felmérés, amely lényegében egy szintvonalas térkép a tervezési területről és környezetéről, valamint a Talajmechanikai szakvélemény, ez pedig a talajból vett fúrási minták alapján annak szerkezetét, teherbírását írja le.

Az álmodozások kora, avagy most legyünk kreatívak - elvi vázlatok, koncepció tervek

A helyszín és az építési előírások ismeretében, gyakran tartunk még egy részletekbe menő beszélgetést is a tervezendő épületről. Vannak családok, akik igénylik a személyes találkozást és beszélgetést, de vannak, akikkel ezt inkább interneten vagy telefonon bonyolítjuk. Többször terveztünk olyan pároknak is, akik külföldön dolgoztak a tervezés egész ideje alatt.

Mint írtuk, ez az „álmodozás időszaka”, amikor megkapjuk a tervezési munkához szükséges inspirációt: milyen legyen a ház, a helyiségek, kapcsolatok, telken való elhelyezés igénye, ki hol szeret tartózkodni, hová kerüljön a konyhában robotgép stb...

Épület tervezési folyamata, a koncepció tervek Elkezdődik a tervezői műhelymunka. A SzeRaKo Kreatív Design © tervezési folyamat egyik legfontosabb alappillére, hogy először az összes építész kolléga külön-külön kezdi meg az épület tervezését! Ennek befejeztével közösen kiértékeljük egymás munkáit és gyakran előfordul, hogy újabb inspirációt kapva születik még egy-két koncepció terv. Az első körben küldött anyag több alaprajzot, ritkábban térbeli vázlatot, tömegmodellt tartalmaz, amelyből látható, milyen megoldásokat tudunk adni az előzetesen elképzelt épületre. Itt a hangsúly a többes számon van, mert irodánk nem egyetlen megoldást rajzol meg és fejleszt tovább, hanem egyszerre 3-5 megoldást ad ugyanarra az építészeti programra! Az ilyen egyszerű vázlatból készül a legtöbb. Ezzel mutatjuk meg, milyen lehetőségek állnak az Építtetőink előtt, és azt, hogy számos megoldás létezhet ugyanarra a feladatra. A folyamatban lévő munkáink, szabadkézi koncepciók, vázlattervek, térbeli modellek, fényképek és egyéb aktualitások mind megtalálhatók facebook oldalunkon.
Az elvi vázlat vagy koncepció terv jellemzői: méretarányos, lendületes, színes kézi rajzok, sok ötlettel. Ezek alapjaiban különböznek egymástól, azonban van egy fontos közös vonásuk: mind megfelel a főbb elképzeléseknek. A második körös koncepció tervek az elsőkre kapott visszajelzések alapján készülnek. Itt lényeges megemlíteni, hogy a terveket részleteikben (is) kell vizsgálni, mert mindegyikben lehet olyan, ami tetszik és ami kevésbé. Mindezek alapján vagy kiválasztásra kerül egy változat, vagy kettőből-háromból gyúrunk össze egyet, amelyet továbbfejlesztünk.

Megrendelőink szeretik és igénylik ezt a tervezési szakaszt, itt dől el mindegyik fontos kérdés: a lakóház alaprajzi elrendezése, tömeg és tető formálása, de a szerkezeti kérdések is felsejlenek. Ezen az elvi szinten általában nem készülnek homlokzati rajzok, ami nem azt jelenti, hogy a ház tervezése kizárólag alaprajzban folyik - az épületet már ekkor is térben képzeljük el figyelembe véve a Megrendelő által előzetesen elmondott, a leendő épületről elképzelt képet - azonban az évek alatt kialakult tapasztalatunk szerint, ameddig nem tisztázottak az egyes terek és helyiségek egymáshoz fűződő viszonyai, addig nem célszerű újabb bizonytalanságot vinni a tervezési munkába. Ez a komplex gondolkodás biztosítja azt, hogy az elvi vázlat elfogadásakor a ház felruházható majd olyan külsővel, amit az Építtető elképzelt. Ez már a következő tervfázis: a vázlattervi szint.

Hogyan takarítsunk meg sok százezer forintot? - készülnek a vázlattervek, amelyek nem is annyira vázlatosak

Ahogy haladunk az épület tervezés folyamatában és formálódik a házunk, egyre apróbb részletek, pontosabb méretek kerülnek kidolgozásra. A tervben a helyiségek méretezve szerepelnek, ellátva egy javasolt bútorozással. A nyílászárók nyitásiránya, kiosztása is közelít a végleges elrendezéshez. Ekkor már jól kivehető a leendő objektum födém és főfalrendszere is, azaz látszanak, melyek a “vastag falak”. Vázlatterv szintű alaprajzokból sokkal kevesebb készül, a második alaprajz szinte mindig megfelelő, és áttérhetünk a családi házunk külső megjelenésének kidolgozására. Ekkor a számítógépben felépített tömegmodellt térben körbeforgatva is meg tudjuk mutatni, láthatóvá téve az ebben a tervezési fázisban kiemelt részeket: a különféle tömeg elemeket, szinteket, a ház tetőformáját, nyílászárókat.

Épület vázlatterve Míg az alaprajzok a gépben pontosodnak, addig a homlokzati színek és anyagok szabadkézzel készített vázlattervi térbeli rajzokon kerülnek bemutatásra. Minden lakóépület biztosít némi mozgásteret a homlokzati tömegképzésnél, és az anyaghasználattal könnyebb is játszani - erről szintén nagyszámú rajz megtalálható a facebook oldalunkon lévő galériákban. A homlokzatok kialakításakor tekintettel kell lenni a meglévő épített környezetre és az Önkormányzati előírások betartására. Ezek közül a legfontosabbak az építménymagasság és a tetőhajlásszög, valamint a településképi arculati kézikönyvben szereplők.
A homlokzatokon a kis változás mindig szembeötlő, nem úgy az alaprajzokon. Az első terven az eredeti koncepciók alapján készített és elfogadott elrendezés látható, a másodikon a módosított, optimalizált alaprajz látszik, amellyel a ház teljes mértékben kielégíti a felvázolt igényeket, de megtakarít némi területet. Miért fontos ez? Mert az egész építészeti tervezés célja, hogy a munkánk megépüljön, és ezt finanszírozni is kell. A két elrendezés között (földszint és emelet szinteken) mindösszesen ~12m² a különbség, ez 2018-as kulcsrakész áron kb. 3.500.000 Ft, amely több mint az egész lakóingatlan tervezési díja...

A kreatív építészeti rész az elfogadott alaprajzzal és a kész térbeli nézetekkel (ritkán homlokzatokkal) zárul. Építész irodánkban a vázlattervek anyagi rendezése is azok elfogadása után történik, komoly biztosítékul szolgálva Megrendelőink részére, hogy eljutunk az általuk megálmodott házig.

Ami a legnagyobb sikert aratja - fotorealisztikus látványtervek, akár 3D virtuális épületbejárással

Családi ház tervezés, látványtervezési munkák A családi háztervezés során mára sokszor elengedhetetlen a tervezett ingatlan térbeli bemutatása, akár a tervezés korai stádiumában is. Az elvi koncepciók során hasábszerű tömegek, a vázlatterveknél kidolgozottabb tömegmodellek, míg a bejelentési vagy engedélyterv időszakában már látványtervek segítik a Megrendelőt a döntésekben. Lehetőség van irodánkban a tömegmodellek megtekintésére, sőt azon melegében egyes módosításokra, kiegészítésekre is. Jó érzés együtt gondolkodni, együtt tervezni a házat a megrendelő családdal. A látványtervezési szakasz nem csupán esztétikai szempontból lehet hangsúlyos, hanem műszaki szemszögből is segít: milyen legyen az épülethez illeszkedő tetőhajlásszög, íves vagy derékszögű ablakokat tervezzünk, vagy akár a külső pillérek kiosztásában is segít.

A tervezésre rendelkezésre álló idő függvényében a véglegesített látványtervet vagy a vázlattervi szakasz végén, vagy a bejelentési terv után készítjük el. A számítógépes látványtervezés mellett a vázlatterv szakaszban kézzel rajzolt, szép grafikával ábrázolt képeket is készítünk, ezeknek szokott a legnagyobb sikerük lenni, úgy Megrendelőink, mint a szakmai zsűri előtt.
A látványtervek elkészítésekor nem magukat a képeket rajzoljuk meg, hanem elkészítjük a leendő lakóépület 3 dimenziós modelljét, olyan részlettséggel, amit le szeretnénk olvasni róla (pl. függöny az ablakon), majd erről a modellről készítünk a virtuális tér különböző pontjaiból képeket, mint az életben egy fényképezőgéppel. A lakóépületekről készíthetünk külső és belső látványterveket, amelyeket három különböző részletesettséggel lehet kidolgozni. Tömegvázlat: ez a legegyszerűbb kidolgozási mód. Itt csupán a fontosabb szerkezeti elemek készülnek el, a homlokzati anyagok tulajdonságai nem látszanak. Az így elkészített képek fekete-fehérben jelennek meg. Alapkivitelű: régebben ez volt a legelterjedtebb kidolgozási mód, manapság általában sokkal szebb képeket készítünk. A tömegvázlattól eltérően itt láthatók az anyagok színei, struktúrái, a különböző hátterek és árnyékok miatt a képekről ezek jól leolvashatók. Emeltszintű látványterv: az alkalmazott anyagok, burkolatok élethűen kerülnek megrajzolásra, ezért az így bemutatott kép megjelenése fényképszerű. A kidolgozási igény pontosítása után elkészülnek a látványtervek, és megszületnek azon módosítások is, amelyek visszahatnak az alaprajzokra és homlokzatokra.
A technika rohamos fejlődésével, a tervezői munka során az épületek virtuális megjelenítése is mindennapi valósággá vált. A 3D virtuális épületbejárás lehetőséget biztosít, hogy ne kizárólag statikus képek készüljenek, hanem - az elkészítés szintjének megfelelően - akár kívülről és belülről bejárhatóvá válik a létesítmény. Ehhez elég egy számítógép is, ekkor az egér és a billentyűzet segítségével tudunk navigálni, ha azonban az oldalt megfelelő VR eszközzel nézzük, akkor az élmény tényleg valósághű lesz. Ezzel lezárul a kreatív háztervezési szakasz, és kezdetét veszi a bejelentési vagy az építési engedélyezési tervdokumentáció elkészítése.

A törvények és előírások dzsungele - mérnöki munkarészek, kiviteli tervek

Az épület tervezés folyamatának utolsó lépése szinte mindenben eltér az eddigiektől. A Megrendelő központi szerepéből némileg a háttérbe kerül, és mostanra kevés feladata marad: áttekinteni az elkészült terveket, illetve válaszolni a felmerült gépészeti, elektromos kérdésekre. Helyét a középpontban az előírások, az építési- és szakhatóságok valamint a szakmérnökök veszik át.
Tervezési folyamat építészeti szakasz A vázlatterveket nagyon sokszor egyeztetjük az Önkormányzattal is. Ha valamilyen észrevételt kapunk, akkor az még időben javítható, kiegészíthető és maga az egyeztetés is megnyugtató biztosíték Megrendelőink felé, hogy minden rendben van a tervekkel. Egy jó hangvételű szakmai megbeszélés, elemzés igazán sokat lendíthet a munkán. Tervzsűri vagy tervtanácsi kötelezettség esetén személyesen vagyunk jelen, amikor a meghallgatjuk a tervtanács ajánlásait, észrevételeit és a felmerült kérdésekre személyesen válaszolunk.
A különböző munkák menete itt találkozik, mert az egyszerű bejelentési / engedélyezési dokumentációknak a tartalmát a vonatkozó törvények, országos rendeletek (illetve ezt kiegészítő helyi előírások) adják meg pontosan. A következőkben a lakóépületekhez szükséges bejelentési, illetve engedélyezési dokumentáció leggyakoribb tervlapjait ismertetjük (az egyes tervek tartalma alkalmanként eltérő lehet).
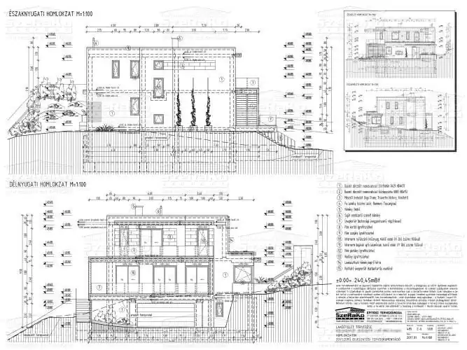
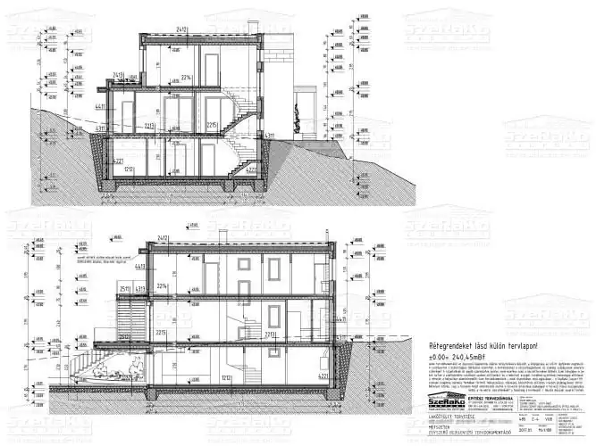
A Fedlapon találhatók a lakóépület adatai, amelyet az Aláírólap és a Tervjegyzék követ. A hivatalos iratok kapnak ezután helyet (Térképmásolat, Tulajdoni lap, Helyi beépítési szabályzat), majd az Építész bejelentési tervek következnek. A Helyszínrajz mutatja be a tervezett építmények elhelyezkedését a telken és a közvetlen környezetében. A Kitűzési helyszínrajz megadja az ingatlanok telken való kitűzésének módját. Az összes eltérő szintről készített Alaprajzok a pontos külső és belső méreteket, helyiségeket mutatják. Az emeletes házaknál és húzott lépcsőknél készülhet a Lépcső geometriáját bemutató terv is. A kereszt és hossz irányban felvett Metszetek az magassági és szerkezeti részleteket árulják el. A Rétegrendek az egymásra kerülő szerkezetek anyagát és sorrendjét határozza meg. A látszó oldalakról készített Homlokzatok a külső megjelenést ábrázolják. Az Utcakép mutatja a ház megjelenését a szomszédos épületek között. Az igazoló számítások elkészítéséhez szükséges az építménymagasság számítás és a zöldterület és térburkolási terv, de ezen rajzokat, külön szükségtelen mellékelni, csak az eredményük számít. Szükség szerint elkészített további tervlapok pl. Tereprendezési terv, Kertészeti terv, Szennyvíztároló terv, stb. Majd az Építész műszaki leírás következik, amely a nem ábrázolt szerkezetekről is ad információkat.
Az építészeti munkarészek után következnek a szakmérnöki tervek, műszaki leírások. Ezek közül talán a legfontosabbak a statikus szakmérnök által készített Tartószerkezeti tervek (ezen belül található az alapozási terv, födémterv, pillérek és koszorúk tervei, lépcsőterv) és a statikai számítások, amelyek az épület egyes teherhordó szerkezeteinek teherbírásait, illetve azok megfelelőségét mutatják, valamint a tartószerkezeti műszaki leírás.
Szakmérnöki tervek elkészítése a folyamatban A Gépészeti rendszerterv részletes leírást ad a fűtési-hűtési rendszerekről, a hideg és melegvíz ellátásról, a csatornázásról és csapadékvíz elvezetésről, a szellőzésről és gáz ellátásról, ennek része a hőtechnikai és energetikai számítás, amely az egyes szerkezetek hőszigetelési tulajdonságait számítja ki. Ez határozza meg a későbbi energetikai besorolás értékét is. Az Épületvillamossági rendszerterv két legfontosabb fejezete az erős és gyengeáramú berendezések leírása. A Tűzvédelmi műszaki leírás az épület tűzzel szembeni ellenállóságát és a tűz esetén a biztonságos kiürítést írja le. Az árazatlan költségvetési kiírás tételes építőmesteri részből (építészet, statika) és munkanemenkénti bontásban lévő szakmérnöki (gépészet, villamosság) részből áll. Szintén szükségesek még a szakhatóságok és közművek által kiadott ún. Elvi nyilatkozatok (Vízművek, Csatornázási művek, Gázművek, Elektromos művek, Kéményseprő vállalat). A terveket az Építettő által megnyitott E-naplóba kell feltölteni és a beadást követő 15 nap után lehet a kivitelezést megkezdeni.

A családi ház tervezés során készítendő építészeti tervek típusai

Megkönnyítendő az eligazodást a különféle építészeti tervfajták között, készítettünk mindegyik tervtípusról néhány soros ismertetést, melyből megtudható, hogy melyik tervdokumentáció milyen esetben szükséges.
Családi háztervezés folyamata, a tervtípusok Ház tervezés és a tervek típusai

Bejelentési dokumentáció

2016 óta létező terv típus, mely lakóépületek tervezésekor alkalmazható. A jogszabály alkotója az akkori, sokszor hosszadalmas és bürokratikus engedélyezések kiváltására hozta létre kifejezetten családi ház tervezés megkönnyítésére. Eredeti formájában tényleges egyszerűsítést jelentett, azonban a szakma és a hatóságok jelzését követően számos alkalommal módosult, mire elérte mai formáját. Az eljárás valóban jelentősen lerövidült, 8 napon belüli hiánypótlás és 15 nap utáni végzés követi, ha a terv hiánytalan. Maga a tervdokumentáció tartalma azonban minden lett, csak nem egyszerű, több tartalmi elemében (építész és statikai) egészen kiviteli terv szintű. Ezen felül még több előkészítő (pl. geodéziai mérés, talajvizsgálati jelentés) és szakmérnöki munkarész (gépészeti, villamos, tűzvédelmi műleírás) is szükséges hozzá. Azon településeken, ahol kötelező a Főépítészi konzultáció, még további tervekkel kell kiegészíteni (pl. utcakép). Az árazatlan költségvetési kiírás ugyan nem kötelező része, de erre a kivitelezéskor szükség lehet.

Építési engedélyezési terv

Társasház vagy nagyobb nem saját részre készülő családi ház tervezése esetén ezt a tervfajtát kell készíteni, de szintén ez szükséges a többi más funkciójú objektum (hétvégi ház, nyaraló, középület, ipari épület, raktárcsarnok stb.) tervezésekor, illetve minden egyéb építménynél is, általános esetben először az építési engedélyezési tervet kell elkészíteni. A terv legtöbbször M=1:100 méretarányú és a tartalma is egyszerűbb a kiviteli tervektől, a legfőbb feladata, hogy a hatóság el tudja dönteni, megfelel-e a hatályos előírásoknak és az engedély kiadható-e rá. Ennél a tervnél is szükségesek az előkészítő munkarészek (felmérési terv, geodézia, talajvizsgálati jelentés, egyéb tanulmányok) és szakmérnöki leírások is (tartószerkezeti, gépészeti, villamos, tűzvédelmi számítások és műleírások) és a kész terveket a központi építési hatósághoz kell benyújtani. Sok hozzájáruló nyilatkozatot a maga a hatóság szerez be, amely néha jelentősen meghosszabbíthatja az engedély kézhez vételét, volt tapasztalatunk féléves idejű engedélyeztetésre is.

Kiviteli terv

Szinte minden olyan esetben, melynél építési engedélyezési terv készül ezen tervtípust az építési folyamathoz kötelezően el kell készíteni. Fontos jellemzője, hogy nagyobb méretarányban (M=1:50, 25, 10) készül és sokkal részletesebben kidolgozott, mint az előző tervek. Majdnem mindig része a különböző szakmérnöki munkanemekhez tartozó dokumentáció (tartószerkezeti, villamos, gépészeti, tűzvédelmi, forgalomtechnikai stb.), melyekről az egyes betervezett építési termékek tulajdonsága leolvasható, de emellett az építészeti tervek is több tervlapból állnak (pl. nyílászáró konszignáció, burkolatkiosztási tervek és a csomópontok vagy részlettervek). Kötelező része az árazatlan költségvetési kiírás is. A legfontosabb részlettervekről leolvasható az alapozás és lábazat kialakítás, a nyílászáró áthidalás, eresz és tető megoldások, valamint a vízelvezetést és hőszigetelést bemutató megoldások. Emellett részletes műszaki és technológiai leírás tartozik hozzá, valamint munka- és környezetvédelmi munkarészek is szükségesek.

Reméljük, a tervezési folyamatunk és tervfajták rövid bemutatásával segítettünk kicsit tisztábban látni családi ház tervezés és az építést megelőző folyamatokat. Ha további kérdése lenne, keressen minket elérhetőségünk egyikén.

Tekintse meg a tervezési folyamatunk eredményeit!

Már többször előfordult, hogy amikor ehhez a részhez értünk, az asztal másik oldalán ülő házaspár egyik tagja csak annyit mondott, hogy „Egy pillanat” és elővette a teljes anyagot kinyomtatva.
Sok év tapasztalata, hogy megrendelőink egy kézlegyintéssel válaszolnak arra a kérdésünkre, hogy mennyit lejt a telek? Ó, az szinte teljesen vízszintes, hangzik a válasz, talán egy picit a jobb sarka lefelé… Ezzel szemben általában a nagyon pici 1-2 métert, a kis lejtés 2-3 métert, míg a közepes lejtés általában 3-5 métert jelent a valóságban. Ez akár 2 emelet! Bizony, ezért is szükséges a helyszíni szemle.
Sokan hoznak saját rajzot is, azzal a magyarázattal, hogy ezt hosszas átgondolás után, minden körülményt figyelembe véve alkották meg, és ez 99%-ban meg is felel nekik, így nekünk már szinte nincs is más dolgunk, csak elkészíteni a terveket. Mi azért mindig bízunk a maradék 1%-unkban!
A megbeszéléseken akkor szokott a legnagyobb derültség fakadni, amikor egyik kérdésünkre a férj és a feleség egyszerre vágja rá, hogy "Igen - Nem” vagy "Földszintes - Emeletes" vagy éppen "Mediterrán - Modern"
Ez a pont, ahol a tervezés megkezdésekor kapott "99%-ban kész alaprajz" lassan a semmi ködébe vész. Ezért érdemes jó építészt választani, aki érdemben hozzá tud tenni az elképzelésekhez!
Egyik ilyen alkalommal a számítógép körül ültünk, nézegetve a képernyőn lévő házat, de valahogy nem volt olyan oldott a légkör, mint máskor szokott. Próbáltunk rájönni az okára, hiszen az épülettel kapcsolatban nem merült fel semmi komoly probléma. Míg végül egyikük bizonytalanul megkérdezte: „Ugye nem akarjuk a tetőt kéken hagyni?” Valószínűleg elfelejtettük hangsúlyozni, hogy a képen az épület még nem valódi színekkel volt felruházva, hanem a régi tervező programban az egyes szerkezetek színkódjait viselte...
Sokan az építész kiválasztásánál egyetlen szempontot vesznek figyelembe: ez pedig az ár. Egy töredék áron tervezett épületnél az építésznek se ideje, se lehetősége ilyen apró részletekbe belemenni, ezzel úgy költi el megrendelője pénzét, hogy az mit sem tud róla. Ez a bejegyzés nem lett túl vidám, hacsak nem annak, aki máshogyan döntött :)
Egy házunk tetőfedésének színét és anyagát úgy változtatta meg az Építtető, hogy a kapott látványkép alapján a saját, eredeti "100%-os" elképzelését bírálta felül. Ez a változtatás a kivitelezés fázisában vagy aligha lett volna lehetséges, vagy igen nagy többlet költséggel járt volna.